Menu

The Birch – No Garage Option (Now Available in Town of Paradise & Butte County)

The Birch – No Garage Option (Now Available in Town of Paradise & Butte County)

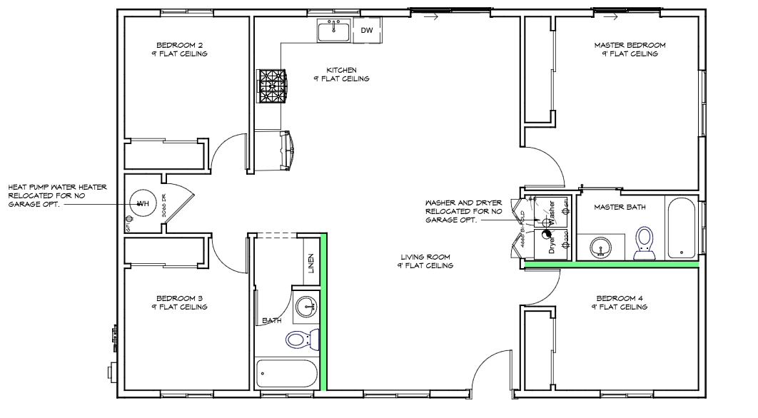
1260 Square Feet | 1 2 3 4 bedrooms | 2 bathrooms

LOVE THIS BUILDING PLAN?

Master Plan Available:
– Town of Paradise
– Butte County (PENDING)

Building Width: 44′-0″
Building Depth: 29′-0″
Residence Area: 1,260 sq ft
Covered Porch Areas: 35 sq ft

If this is the home for you, the first step in the process is to get connected with the Professional Designer and discuss the steps to creating a site plan for your property. Please take a moment to review the important details above, read the FAQ’s HERE and watch our informational video HERE. Then click the blue button below to proceed.

Thank you for your interest in the The Birch – No Garage Option (Now Available in Town of Paradise & Butte County)

We look forward to connecting you with the professionals who have designed  and donated this floor plan. Once you submit your request please allow a few days for us to contact you and discuss the next steps.

**Note: Access to the plans as drawn is free. The process of additional steps to create a “site plan” that makes this plan fit with your unique property, and the creation of the plan set for submittal, will come at an additional charge that is agreed to between you and the Design Professional plan owner (Architect, Designer or Engineer). 

    Current Address Information:


    Address you will be rebuilding a home at (Must be in the Camp fire affected area):


    Are you interested in grants?



    Thank you for your interest in the The Birch – No Garage Option (Now Available in Town of Paradise & Butte County)

    We look forward to connecting you with the professionals who have designed  and donated this floor plan. Once you submit your request please allow a few days for us to contact you and discuss the next steps.

    **Note: Access to the plans as drawn is free. The process of additional steps to create a “site plan” that makes this plan fit with your unique property, and the creation of the plan set for submittal, will come at an additional charge that is agreed to between you and the Design Professional plan owner (Architect, Designer or Engineer). 

      Current Address Information:


      Address you will be rebuilding a home at (Must be in the Camp fire affected area):


      Are you interested in grants?



      DESCRIPTION

      Introducing our first 4-bedroom option – The Birch! Carefully designed to accommodate larger families or those seeking more bedroom choices while being mindful of septic capacity. The Birch features a master plan with a gable roof, offering the flexibility to choose between 1, 2, 3, or 4 bedrooms with an office option. Additionally, you can opt for no garage, a 1-car garage, or a 2-car garage, tailoring the home to suit your needs perfectly.

      MEET THE Engineer: Rancho Engineering

      A long-time Paradise firm, Rancho Engineering is owned and operated by Jarrod and Kelly Holliday. Jarrod stepped up right away to commit the resources of Rancho for the floor plan library and to serve the community he calls home.  Rancho Engineering is a civil engineering firm that specializes in structural design, custom home design and septic system design.

      LOVE THIS BUILDING PLAN?

      Master Plan Available:
      – Town of Paradise
      – Butte County (PENDING)

      Building Width: 44′-0″
      Building Depth: 29′-0″
      Residence Area: 1,260 sq ft
      Covered Porch Areas: 35 sq ft

      If this is the home for you, the first step in the process is to get connected with the Professional Designer and discuss the steps to creating a site plan for your property. Please take a moment to review the important details above, read the FAQ’s HERE and watch our informational video HERE. Then click the blue button below to proceed.